Описание люка ЛКЗ (1000х1000)
Люк ЛКЗ (1000х1000) применяется для устройства смотровых колодцев, обеспечивающих доступ к подземным коммуникациям и инженерным сетям. Изделие изготавливается компанией ГК "БЛОК", которая специализируется на производстве и поставке железобетонных изделий в Москве, из высокопрочного бетона с армированием стальной арматурой, что обеспечивает его прочность, устойчивость к нагрузкам и долговечность.
Нормативный документ: ТУ 4859-017-03219029-2004.
Применение люка ЛКЗ (1000х1000)
Люк ЛКЗ (1000х1000) используется для создания надёжных смотровых колодцев, которые служат важной частью системы водоотведения, канализации, теплоснабжения и других инженерных коммуникаций. Он обеспечивает безопасность, удобство обслуживания и долговечность объектов. Для монтажа могут применяться дополнительные элементы: герметизирующие материалы, закладные детали и другие комплектующие.
Типы люков
Железобетонные люки подразделяются на несколько типов в зависимости от назначения и конструкции:
- ЛКЗ: люк круглый заглубленный;
- ЛКП: люк круглый поверхностный;
- ЛКУ: люк усиленный;
- ЛКД: люк доборный.
Размеры зависят от типа: диаметр 1000–1500 мм, высота 202–300 мм.
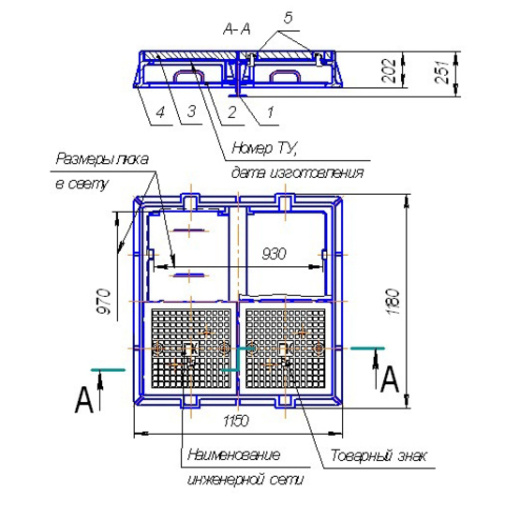
Основные параметры, размеры и характеристики
- Длина L, мм: 1180
- Ширина b, мм: 1150
- Высота h, мм: 202
- Масса, тонн: 0.62
- Объем бетона, м³: 0.248
- Геометрический объем, м³: 0.274
Дополнительные характеристики
- Класс бетона: B25 (марка М350)
- Марка по морозостойкости: F200–F300
- Марка по водонепроницаемости: W6–W8
- Технология изготовления: вибропрессование или формование с использованием высокопрочного бетона.
Нормы загрузки
- Норма загрузки в автотранспорт 20 т, шт: 32
Расшифровка маркировки ЛКЗ (1000х1000)
Маркировка "ЛКЗ (1000х1000)" содержит следующую информацию:
- ЛКЗ – люк круглый заглубленный;
- 1000х1000 – условные размеры внутреннего проёма люка в миллиметрах.
Условия транспортировки и хранения
Люки ЛКЗ (1000х1000) перевозятся автомобильным или железнодорожным транспортом с использованием специальных захватных устройств (строп). Хранение осуществляется на ровных площадках с твердым покрытием. Люки устанавливаются горизонтально в штабель высотой не более 2,5 м. Для предотвращения повреждений между изделиями устанавливаются деревянные прокладки.
Контроль качества люка ЛКЗ (1000х1000)
Каждый люк ЛКЗ (1000х1000) проходит многоступенчатый контроль качества. Проверяются:
- прочность бетона (не ниже класса B25);
- соответствие геометрических размеров проектным данным;
- морозостойкость и водонепроницаемость бетона;
- точность расположения закладных элементов (при наличии);
- отсутствие трещин, сколов и других дефектов.
Заключение
Люк ЛКЗ (1000х1000) – это надежный и долговечный элемент для устройства смотровых колодцев, обеспечивающих доступ к подземным коммуникациям. Благодаря использованию качественных материалов и современных технологий производства, он обеспечивает прочность, устойчивость и долговечность конструкций. Для заказа качественных железобетонных изделий обращайтесь к профессионалам своего дела – компании ГК "БЛОК".
Смотрите также:
| Варианты написания товара |
|---|
| Люк ЛКЗ (1000х1000) |
| ЛКЗ (1000х1000) люк |
| Люк ЛКЗ (1000х1000) ТУ 4859-017-03219029-2004 |
| ЛКЗ (1000х1000) ТУ 4859-017-03219029-2004 |
| ЛКЗ (1000х1000) |
| Люк ЛКЗ (1000х1000) ГОСТ |
| ЛКЗ (1000х1000) ГОСТ |
|
ГОСТ/Серия
|
ТУ 4859-017-03219029-2004 |
|
Длина, мм
|
1180 |
|
Ширина, мм
|
1150 |
|
Высота, мм
|
202 |
|
Масса, тонн
|
0.62 |
|
Объем бетона, куб.м
|
0.248 |
|
Геометрический объем, м.куб
|
0.274 |
Как купить
Процесс покупки железобетонных изделий у нас прост и удобен. Следуйте этим шагам:
- Выбор продукции: Ознакомьтесь с нашим ассортиментом и выберите необходимые железобетонные изделия.
- Консультация: Свяжитесь с нашим менеджером для получения консультации по выбору продукции и уточнения всех деталей. Вы можете позвонить нам или написать на электронную почту.
- Оформление заказа: После согласования всех деталей оформите заказ. Менеджер поможет вам заполнить все необходимые документы.
- Согласование доставки: После оформления заказа наш менеджер свяжется с вами для согласования условий и сроков доставки.
- Оплата: Выберите удобный способ оплаты. Мы предлагаем несколько вариантов, включая безналичный расчет.
- Получение товара: После выполнения всех условий заказа, вы получите железобетонные изделия в назначенное время и по согласованному адресу. При получении подпишите акт приема-передачи.
Если у вас возникли вопросы на любом этапе покупки, не стесняйтесь обращаться к нашим менеджерам!
Оплата
Мы принимаем только безналичные платежи и работаем исключительно с юридическими лицами. Пожалуйста, ознакомьтесь с условиями оплаты ниже:
- Способ оплаты: Все расчеты производятся безналичным путем. Мы не принимаем наличные.
- Счет на оплату: После оформления заказа вам будет выставлен счет, который необходимо оплатить в срок, указанный в документе.
- Реквизиты: Все необходимые банковские реквизиты будут предоставлены в счете. Убедитесь, что все данные указаны правильно для успешного перевода.
- Подтверждение оплаты: После осуществления платежа отправьте нам подтверждение, чтобы мы могли оперативно обработать ваш заказ.
- Получение документов: После полной оплаты вы получите все необходимые документы, включая акт выполненных работ, товарные накладные и сертификаты на продукцию.
Мы работаем с НДС и предоставляем все необходимые сертификаты и документы. Все гарантии будут прописаны в договоре, что обеспечивает прозрачность и надежность сотрудничества.
Если у вас есть вопросы по поводу процесса оплаты, не стесняйтесь обращаться к нашим менеджерам за помощью!
Наша оперативность — ваше удобство. Мы гарантируем своевременную доставку железобетонных изделий, что является ключевым фактором для успешной реализации ваших строительных проектов. Доставка осуществляется прямо к вашему объекту с учетом всех стандартов качества.
Основные условия доставки:
• Выбор тарифа: Вы можете выбрать способ расчета стоимости доставки — почасовой или по зонам.
• Согласование: Менеджер свяжется с вами для уточнения деталей после оформления заказа.
• Время на погрузку: Комплектация товара занимает от 1 до 3 дней в зависимости от объема.
• Акт приема-передачи: Продукция передается по акту приема-передачи.
Тарифы на доставку:
Цены варьируются в зависимости от расстояния и региона. Все тарифы включают НДС. При неблагоприятных погодных условиях возможны небольшие изменения в стоимости.
География доставки:
Мы работаем по всей территории РФ и имеем 12 офисов и производств, чтобы обеспечить удобные условия для доставки.
Для точного расчета стоимости доставки обращайтесь к нашим менеджерам!

