Описание блока парапетного ограждения 12 ДО-ТУ 5899-002-2010/400 (600)-1.27 (1.15)-С
Блок парапетного ограждения (12 ДО-ТУ 5899-002-2010/400 (600)-1.27 (1.15)-С) применяется для устройства защитных и декоративных ограждений на мостах, эстакадах, путепроводах и других инженерных сооружениях. Изделие изготавливается компанией ГК "БЛОК", которая специализируется на производстве и поставке железобетонных изделий в Москве, с использованием высокопрочного бетона и армирования стальной арматурой, что обеспечивает его прочность, устойчивость к нагрузкам и долговечность.
Нормативный документ: ТУ 5899-002-61548960-2010.
Применение блока парапетного ограждения
Блок парапетного ограждения используется для создания надёжной конструкции, воспринимающей нагрузки от внешних воздействий, таких как ветровые нагрузки, удары транспорта или другие механические воздействия. Он служит важной частью системы, обеспечивающей безопасность движения, защиту пешеходов и эстетическое оформление объектов.
Типы парапетных блоков
Железобетонные парапетные блоки подразделяются на несколько типов в зависимости от назначения и конструкции:
- ДО: дорожное ограждение;
- ПО: парапетное ограждение;
- УО: усиленное ограждение;
- КО: комбинированное ограждение.
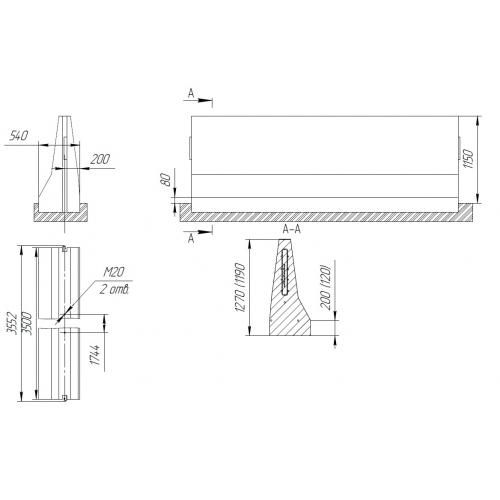
Размеры зависят от типа: длина 3552–3560 мм, ширина 540–550 мм, высота 1270–1280 мм.
Основные параметры, размеры и характеристики
- Длина L, мм: 3552
- Ширина b, мм: 540
- Высота h, мм: 1270
- Масса, тонн: 6
- Объем бетона, м³: 2.4
- Геометрический объем, м³: 2.436
Дополнительные характеристики
- Класс бетона: B25–B30 (марка М350–М400);
- Марка по морозостойкости: F200–F300;
- Марка по водонепроницаемости: W6–W8;
- Технология изготовления: формование с использованием высокопрочного бетона.
Нормы загрузки
- Норма загрузки в автотранспорт 20 т, шт: 3 (при наличии специального оборудования).
Расшифровка маркировки 12 ДО-ТУ 5899-002-2010/400 (600)-1.27 (1.15)-С
Маркировка "12 ДО-ТУ 5899-002-2010/400 (600)-1.27 (1.15)-С" содержит следующую информацию:
- 12 – условная длина изделия в дециметрах (3552 мм);
- ДО – дорожное ограждение;
- ТУ 5899-002-2010 – технические условия;
- 400 (600) – расчетная нагрузка или вариант исполнения;
- 1.27 (1.15) – высота парапета в метрах (1270 мм);
- С – наличие специальных закладных элементов.
Условия транспортировки и хранения
Блоки парапетного ограждения перевозятся автомобильным или железнодорожным транспортом с использованием специальных захватных устройств (строп). Хранение осуществляется на ровных площадках с твердым покрытием. Блоки устанавливаются горизонтально в штабель высотой не более 2,5 м. Для предотвращения повреждений между изделиями устанавливаются деревянные прокладки.
Контроль качества блока парапетного ограждения
Каждый блок парапетного ограждения проходит многоступенчатый контроль качества. Проверяются:
- прочность бетона (не ниже класса B25–B30);
- соответствие геометрических размеров проектным данным;
- морозостойкость и водонепроницаемость бетона;
- точность расположения закладных элементов;
- отсутствие трещин, сколов и других дефектов.
Заключение
Блок парапетного ограждения 12 ДО-ТУ 5899-002-2010/400 (600)-1.27 (1.15)-С – это надежный и долговечный элемент для устройства защитных и декоративных ограждений на инженерных сооружениях. Благодаря использованию качественных материалов и современных технологий производства, он обеспечивает прочность, устойчивость и долговечность конструкций. Для заказа качественных железобетонных изделий обращайтесь к профессионалам своего дела – компании ГК "БЛОК".
Смотрите также:
| Варианты написания товара | 
|---|
| Блок парапетного ограждения 12 ДО-ТУ 5899-002-2010 | 
| 12 ДО-ТУ 5899-002-2010 блок парапетного ограждения | 
| Блок парапетного ограждения 12 ДО ТУ 5899-002-2010 | 
| 12 ДО ТУ 5899-002-2010 | 
| Блок парапетного ограждения ГОСТ | 
| 12 ДО-ТУ 5899-002-2010 ГОСТ | 
| 
											ГОСТ/Серия
																					 | ТУ 5899-002-61548960-2010 | 
| 
											Длина, мм
																					 | 3552 | 
| 
											Ширина, мм
																					 | 540 | 
| 
											Высота, мм
																					 | 1270 | 
| 
											Масса, тонн
																					 | 6 | 
| 
											Объем бетона, куб.м
																					 | 2.4 | 
| 
											Геометрический объем, м.куб
																					 | 2.436 | 
Как купить
Процесс покупки железобетонных изделий у нас прост и удобен. Следуйте этим шагам:
- Выбор продукции: Ознакомьтесь с нашим ассортиментом и выберите необходимые железобетонные изделия.
- Консультация: Свяжитесь с нашим менеджером для получения консультации по выбору продукции и уточнения всех деталей. Вы можете позвонить нам или написать на электронную почту.
- Оформление заказа: После согласования всех деталей оформите заказ. Менеджер поможет вам заполнить все необходимые документы.
- Согласование доставки: После оформления заказа наш менеджер свяжется с вами для согласования условий и сроков доставки.
- Оплата: Выберите удобный способ оплаты. Мы предлагаем несколько вариантов, включая безналичный расчет.
- Получение товара: После выполнения всех условий заказа, вы получите железобетонные изделия в назначенное время и по согласованному адресу. При получении подпишите акт приема-передачи.
Если у вас возникли вопросы на любом этапе покупки, не стесняйтесь обращаться к нашим менеджерам!
Оплата
Мы принимаем только безналичные платежи и работаем исключительно с юридическими лицами. Пожалуйста, ознакомьтесь с условиями оплаты ниже:
- Способ оплаты: Все расчеты производятся безналичным путем. Мы не принимаем наличные.
- Счет на оплату: После оформления заказа вам будет выставлен счет, который необходимо оплатить в срок, указанный в документе.
- Реквизиты: Все необходимые банковские реквизиты будут предоставлены в счете. Убедитесь, что все данные указаны правильно для успешного перевода.
- Подтверждение оплаты: После осуществления платежа отправьте нам подтверждение, чтобы мы могли оперативно обработать ваш заказ.
- Получение документов: После полной оплаты вы получите все необходимые документы, включая акт выполненных работ, товарные накладные и сертификаты на продукцию.
Мы работаем с НДС и предоставляем все необходимые сертификаты и документы. Все гарантии будут прописаны в договоре, что обеспечивает прозрачность и надежность сотрудничества.
Если у вас есть вопросы по поводу процесса оплаты, не стесняйтесь обращаться к нашим менеджерам за помощью!
Наша оперативность — ваше удобство. Мы гарантируем своевременную доставку железобетонных изделий, что является ключевым фактором для успешной реализации ваших строительных проектов. Доставка осуществляется прямо к вашему объекту с учетом всех стандартов качества.
    Основные условия доставки:
    • Выбор тарифа: Вы можете выбрать способ расчета стоимости доставки — почасовой или по зонам.
    • Согласование: Менеджер свяжется с вами для уточнения деталей после оформления заказа.
    • Время на погрузку: Комплектация товара занимает от 1 до 3 дней в зависимости от объема.
    • Акт приема-передачи: Продукция передается по акту приема-передачи.
    Тарифы на доставку:
    Цены варьируются в зависимости от расстояния и региона. Все тарифы включают НДС. При неблагоприятных погодных условиях возможны небольшие изменения в стоимости.
    География доставки:
    Мы работаем по всей территории РФ и имеем 12 офисов и производств, чтобы обеспечить удобные условия для доставки.
Для точного расчета стоимости доставки обращайтесь к нашим менеджерам!


 
						 
						 
							